English
À propos
Marché de l’investissement
Soutien
Nous joindre
Connexion
Recherche
Espaces disponibles, immeubles, agents de location
Recherche par carte
Espaces, immeubles ...
*anglais seulement
Perspective
Rapports sur le marché et statistiques
Mon InSite
Mes immeubles, mes enquêtes, mon profil
5420 North Service chemin
5420 North Service Road
Bibliothèque de fichier
Documents
Document 1
x px (4.06 mb)
Nov 14, 2025
Ouvrir
|
Télécharger
Building Photos
Photo 1
2667 x 2000px (477.52 kb)
Apr 28, 2025
Ouvrir
|
Télécharger
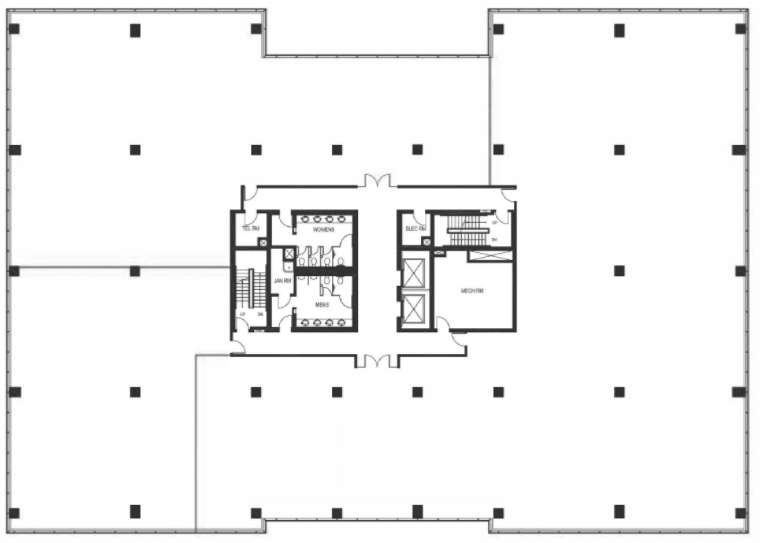
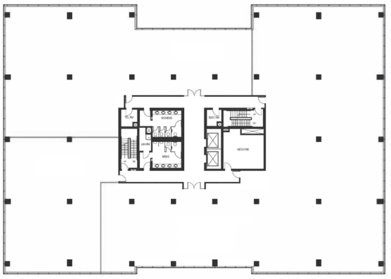
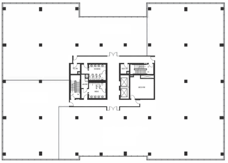
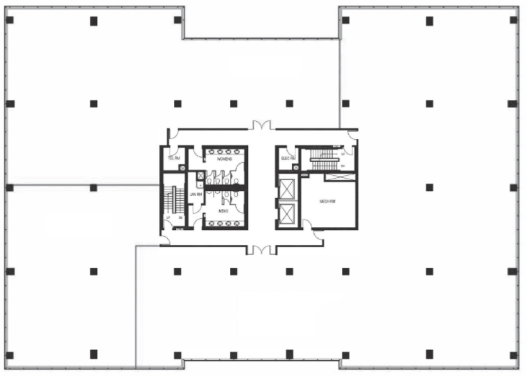
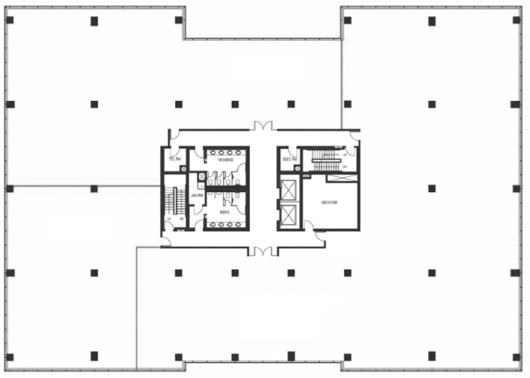
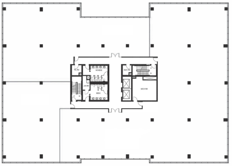
Typical Floor Plans
Floor Plan 1
760 x 543px (73.32 kb)
Dec 13, 2017
Ouvrir
|
Télécharger
Recherche
Perspective
Mon InSite
À propos
Marché de l’investissement
Soutien
Suivez-nous
Altus InSite © Altus Group Limited 1998-2025
Groupe Altus
Politique de confidentialité
Conditions d’utilisation
Droits d'auteur
Accessibilité