Français
About Us
Investment Trends Survey
Support
Contact
Login
Search
Find available space, buildings, contacts
Map Search
Define your own search area and build custom analytics
Perspective
Market analytics and statistical reporting
My InSite
My Listings, My Surveys, My Profile
54-70 Arthur Street
54-70 Arthur Street
File Library
Documents
Document 1
x px (3.73 mb)
Oct 7, 2025
Open
|
Download
Building Photos
Photo 1
1257 x 949px (234.57 kb)
Oct 24, 2016
Open
|
Download
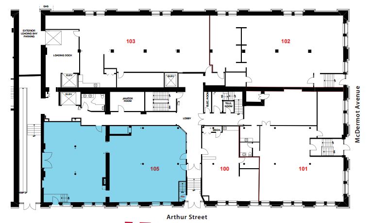
Typical Floor Plans
Floor Plan 1
764 x 460px (55.18 kb)
Oct 24, 2016
Open
|
Download
Find
Perspective
My InSite
About Us
Investment Trends Survey
Support
Contact
Altus InSite © Altus Group Limited 1998-2026
Altus Group
Privacy Policy
Terms of Use
Copyright
Accessibility