English
À propos
Marché de l’investissement
Soutien
Nous joindre
Connexion
Recherche
Espaces disponibles, immeubles, agents de location
Recherche par carte
Espaces, immeubles ...
*anglais seulement
Perspective
Rapports sur le marché et statistiques
Mon InSite
Mes immeubles, mes enquêtes, mon profil
18 Corporation allée
18 Corporation Drive
Bibliothèque de fichier
Documents
Document 1
x px (526.11 kb)
May 11, 2015
Ouvrir
|
Télécharger
Building Photos
Photo 1
772 x 350px (53.56 kb)
May 11, 2015
Ouvrir
|
Télécharger
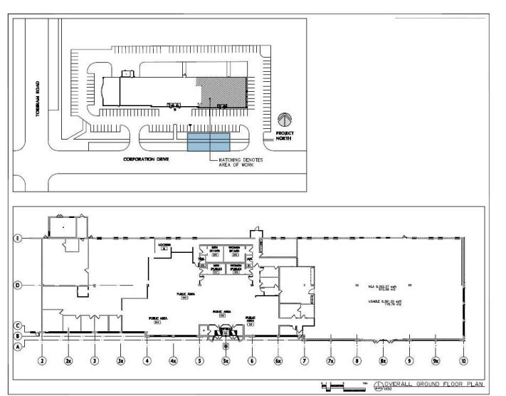
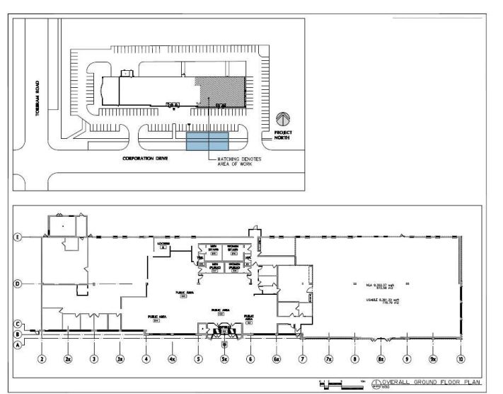
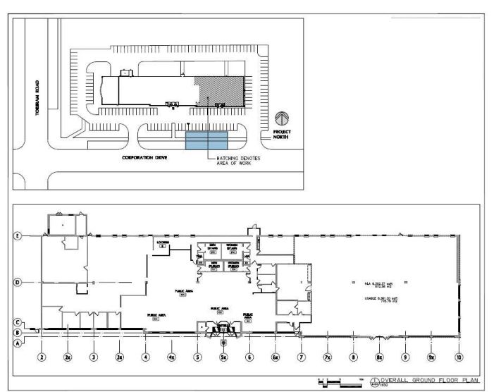
Typical Floor Plans
Floor Plan 1
711 x 556px (59.81 kb)
May 11, 2015
Ouvrir
|
Télécharger
Recherche
Perspective
Mon InSite
À propos
Marché de l’investissement
Soutien
Suivez-nous
Altus InSite © Altus Group Limited 1998-2026
Groupe Altus
Politique de confidentialité
Conditions d’utilisation
Droits d'auteur
Accessibilité