English
À propos
Marché de l’investissement
Soutien
Nous joindre
Connexion
Recherche
Espaces disponibles, immeubles, agents de location
Recherche par carte
Espaces, immeubles ...
*anglais seulement
Perspective
Rapports sur le marché et statistiques
Mon InSite
Mes immeubles, mes enquêtes, mon profil
250 McDermot avenue
Merchant's Building 250 McDermot & 55 Arthur
Bibliothèque de fichier
Documents
Document 1
x px (4.06 mb)
Feb 7, 2025
Ouvrir
|
Télécharger
Building Photos
Photo 1
1248 x 938px (182.11 kb)
Oct 24, 2016
Ouvrir
|
Télécharger
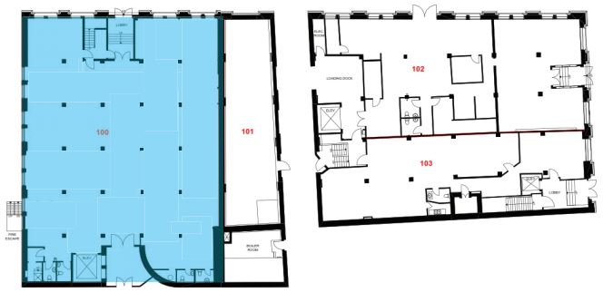
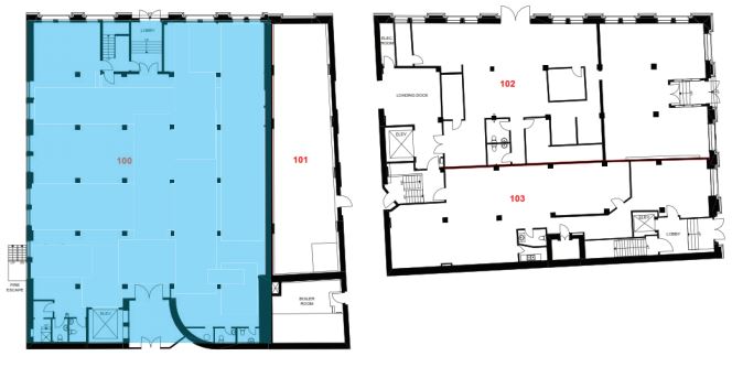
Typical Floor Plans
Floor Plan 1
664 x 333px (36.82 kb)
Oct 24, 2016
Ouvrir
|
Télécharger
Recherche
Perspective
Mon InSite
À propos
Marché de l’investissement
Soutien
Suivez-nous
Altus InSite © Altus Group Limited 1998-2025
Groupe Altus
Politique de confidentialité
Conditions d’utilisation
Droits d'auteur
Accessibilité