English
À propos
Marché de l’investissement
Soutien
Nous joindre
Connexion
Recherche
Espaces disponibles, immeubles, agents de location
Recherche par carte
Espaces, immeubles ...
*anglais seulement
Perspective
Rapports sur le marché et statistiques
Mon InSite
Mes immeubles, mes enquêtes, mon profil
4501 Kingsway rue
The Sovereign
Bibliothèque de fichier
Building Photos
Photo 1
719 x 795px (208.55 kb)
Mar 5, 2014
Ouvrir
|
Télécharger
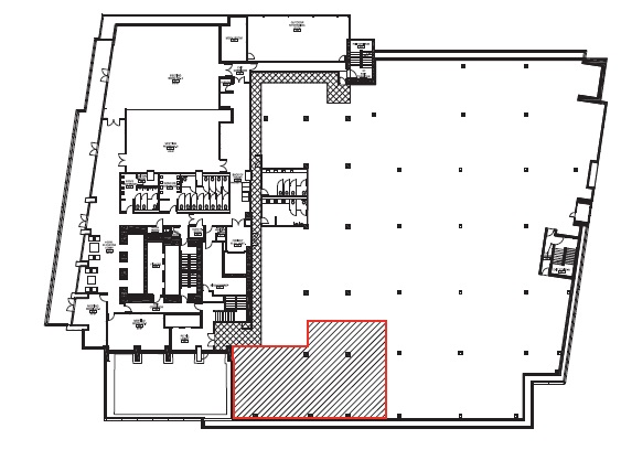
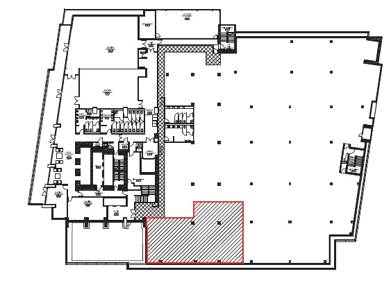
Typical Floor Plans
Floor Plan 1
563 x 408px (61.34 kb)
Mar 5, 2014
Ouvrir
|
Télécharger
Recherche
Perspective
Mon InSite
À propos
Marché de l’investissement
Soutien
Suivez-nous
Altus InSite © Altus Group Limited 1998-2026
Groupe Altus
Politique de confidentialité
Conditions d’utilisation
Droits d'auteur
Accessibilité