English
À propos
Marché de l’investissement
Soutien
Nous joindre
Connexion
Recherche
Espaces disponibles, immeubles, agents de location
Recherche par carte
Espaces, immeubles ...
*anglais seulement
Perspective
Rapports sur le marché et statistiques
Mon InSite
Mes immeubles, mes enquêtes, mon profil
185 The West Mall
185 The West Mall
Bibliothèque de fichier
Documents
Document 1
x px (3.27 mb)
Nov 14, 2025
Ouvrir
|
Télécharger
Building Photos
Photo 1
2100 x 3150px (461.27 kb)
Mar 21, 2016
Ouvrir
|
Télécharger
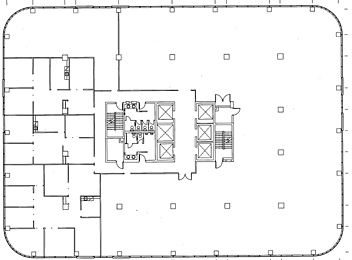
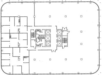
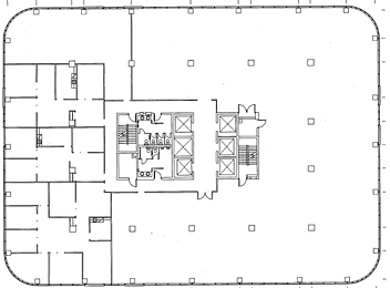
Typical Floor Plans
Floor Plan 1
352 x 260px (41.78 kb)
Jan 11, 2014
Ouvrir
|
Télécharger
Recherche
Perspective
Mon InSite
À propos
Marché de l’investissement
Soutien
Suivez-nous
Altus InSite © Altus Group Limited 1998-2025
Groupe Altus
Politique de confidentialité
Conditions d’utilisation
Droits d'auteur
Accessibilité