English
À propos
Marché de l’investissement
Soutien
Nous joindre
Connexion
Recherche
Espaces disponibles, immeubles, agents de location
Recherche par carte
Espaces, immeubles ...
*anglais seulement
Perspective
Rapports sur le marché et statistiques
Mon InSite
Mes immeubles, mes enquêtes, mon profil
22 Jamie avenue
22 Jamie Avenue
Bibliothèque de fichier
Documents
Building Photos
Photo 1
640 x 356px (151.62 kb)
Dec 18, 2017
Ouvrir
|
Télécharger
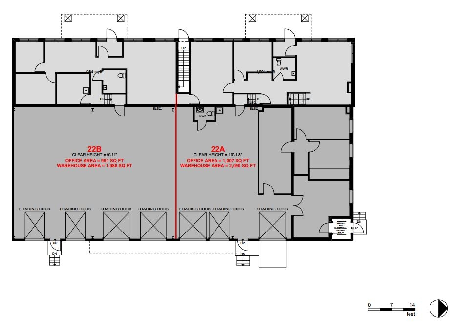
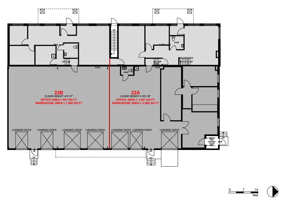
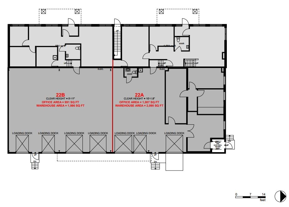
Typical Floor Plans
Floor Plan 1
925 x 664px (116.65 kb)
Dec 18, 2017
Ouvrir
|
Télécharger
Recherche
Perspective
Mon InSite
À propos
Marché de l’investissement
Soutien
Suivez-nous
Altus InSite © Altus Group Limited 1998-2026
Groupe Altus
Politique de confidentialité
Conditions d’utilisation
Droits d'auteur
Accessibilité