English
À propos
Marché de l’investissement
Soutien
Nous joindre
Connexion
Recherche
Espaces disponibles, immeubles, agents de location
Recherche par carte
Espaces, immeubles ...
*anglais seulement
Perspective
Rapports sur le marché et statistiques
Mon InSite
Mes immeubles, mes enquêtes, mon profil
400 Ellice avenue
IBM Building
Bibliothèque de fichier
Documents
Document 1
x px (906.06 kb)
Jan 29, 2025
Ouvrir
|
Télécharger
Building Photos
Photo 1
469 x 325px (127.92 kb)
Apr 10, 2012
Ouvrir
|
Télécharger
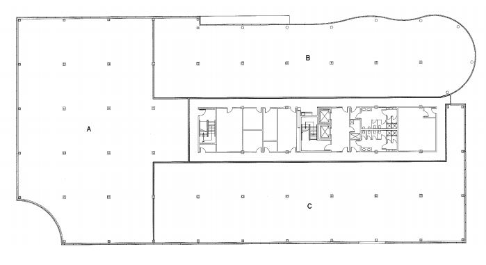
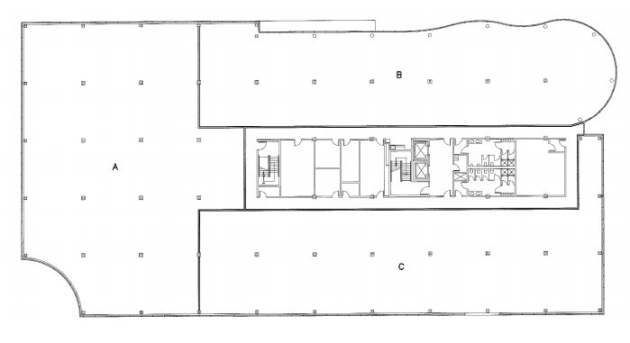
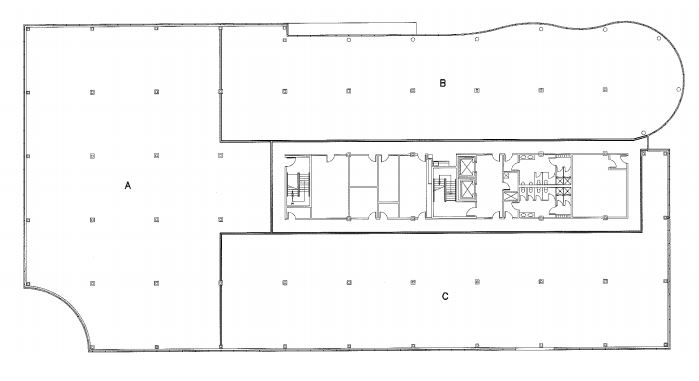
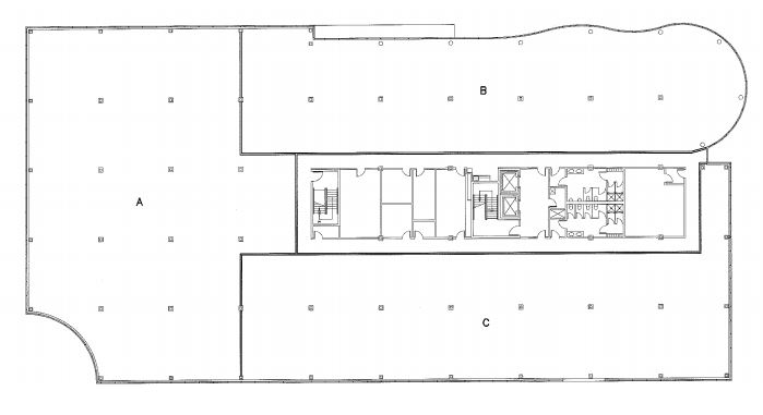
Typical Floor Plans
Floor Plan 1
699 x 381px (29.12 kb)
Oct 25, 2016
Ouvrir
|
Télécharger
Recherche
Perspective
Mon InSite
À propos
Marché de l’investissement
Soutien
Suivez-nous
Altus InSite © Altus Group Limited 1998-2025
Groupe Altus
Politique de confidentialité
Conditions d’utilisation
Droits d'auteur
Accessibilité