English
À propos
Marché de l’investissement
Soutien
Nous joindre
Connexion
Recherche
Espaces disponibles, immeubles, agents de location
Recherche par carte
Espaces, immeubles ...
*anglais seulement
Perspective
Rapports sur le marché et statistiques
Mon InSite
Mes immeubles, mes enquêtes, mon profil
80 Hines chemin
80 Hines Road
Bibliothèque de fichier
Building Photos
Photo 1
1920 x 800px (353.65 kb)
Jun 14, 2017
Ouvrir
|
Télécharger
Photo 2
1920 x 800px (422.48 kb)
Jun 14, 2017
Ouvrir
|
Télécharger
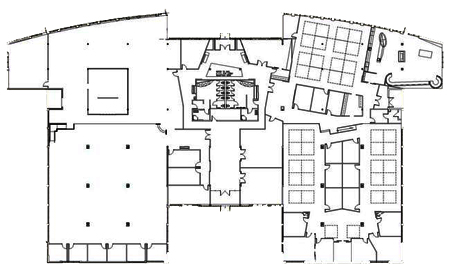
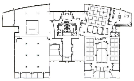
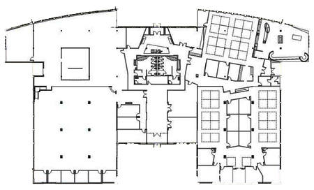
Typical Floor Plans
Floor Plan 1
450 x 272px (89.88 kb)
Jun 9, 2010
Ouvrir
|
Télécharger
Recherche
Perspective
Mon InSite
À propos
Marché de l’investissement
Soutien
Suivez-nous
Altus InSite © Altus Group Limited 1998-2026
Groupe Altus
Politique de confidentialité
Conditions d’utilisation
Droits d'auteur
Accessibilité