English
À propos
Marché de l’investissement
Soutien
Nous joindre
Connexion
Recherche
Espaces disponibles, immeubles, agents de location
Recherche par carte
Espaces, immeubles ...
*anglais seulement
Perspective
Rapports sur le marché et statistiques
Mon InSite
Mes immeubles, mes enquêtes, mon profil
151 de Mortagne boulevard
151 Boulevard de Mortagne
Bibliothèque de fichier
Documents
Document 1
x px (3.27 mb)
Oct 20, 2025
Ouvrir
|
Télécharger
Building Photos
Photo 1
1280 x 960px (412.86 kb)
Aug 25, 2025
Ouvrir
|
Télécharger
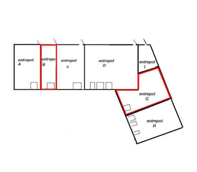
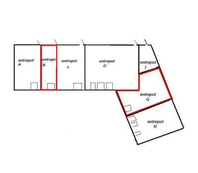
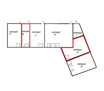
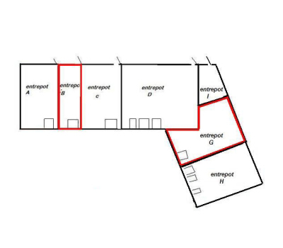
Typical Floor Plans
Floor Plan 1
400 x 350px (53.07 kb)
Jun 9, 2010
Ouvrir
|
Télécharger
Recherche
Perspective
Mon InSite
À propos
Marché de l’investissement
Soutien
Suivez-nous
Altus InSite © Altus Group Limited 1998-2026
Groupe Altus
Politique de confidentialité
Conditions d’utilisation
Droits d'auteur
Accessibilité